поиск в избранное карта сайта
  Saab РЕМОНТ ОБСЛУЖИВАНИЕ ЭКСПЛУАТАЦИЯ АВТОМОБИЛЕЙ
Сааб 9-5. Saab 9-5 (с 1997 года выпуска)

полные технические характеристики. диагностика. электросхемы
 
Главная
 
Saab
9-5
1. Введение
2. Органы управления и приемы эксплуатации
3. Настройки и текущее обслуживание автомобиля
4. Двигатель
5. Системы охлаждения двигателя, отопления, вентиляции и кондиционирования воздуха
5.1. Система охлаждения двигателя
5.1.1. Общая информация и меры предосторожности
5.1.2. Снятие и установка водяного насоса
5.1.3. Снятие и установка термостата
5.1.4. Снятие и установка сборки вентиляторов радиатора
5.1.5. Замена вентилятора
5.1.6. Снятие и установка радиатора
5.1.7. Снятие и установка маслоохладителя 4-цилиндровых бензиновых двигателей
5.1.8. Снятие и установка расширительного бачка
5.2. Системы отопления, вентиляции и кондиционирования воздуха
6. Системы питания и выпуска отработавших газов
7. Системы электрооборудования двигателя
8. Ручная коробка переключения передач
9. Автоматическая трансмиссия
10. Сцепление и приводные валы
11. Тормозная система
12. Подвеска и рулевое управление
13. Кузов
14. Бортовое электрооборудование
 


5.1. Система охлаждения двигателя

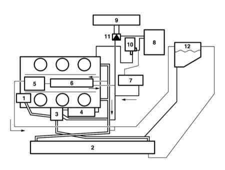
Схема системы охлаждения 4-цилиндровых двигателей

1 — Радиатор
2 — Расширительный бачок
3 — Водяной насос
4 — Двигатель
5 — Корпус термостата
6 — Теплообменник отопителя

7 — Корпус дросселя
8 — Турбокомпрессор
9 — Маслоохладитель ATF
10 — Датчик температуры ОЖ
11 — Клапан отсечки
12 — Вентилятор радиатора

Схема системы охлаждения бензиновых двигателей V6

1 — Водяной насос
2 — Двигатель
3 — Термостат
4 — Радиатор
5 — Теплообменник отопителя
6 — Расширительный бачок

7 — Электрический насос
8 — Маслоохладитель
9 — Корпус дросселя
10 — Клапан отсечки
11 — Турбокомпрессор
12 — Вентилятор радиатора

Схема системы охлаждения дизельных двигателей V6

1 — Водяной насос
2 — Радиатор
3 — Корпус термостата
4 — Маслоохладитель
5 — Клапан EGR
6 — Трубка охлаждения EGR

7 — Турбокомпрессор
8 — Дополнительный отопитель
9 — Теплообменник отопителя
10 — Циркуляционный насос
11 — Клапан
12 — Расширительный бачок

Система охлаждения двигателя работает по следующему алгоритму. Пока двигатель не прогрет, охлаждающая жидкость (ОЖ) прокачивается постоянно работающим насосом только в головке и блоке цилиндров, а также в теплообменнике отопителя салона. При повышении температуры ОЖ до определённого уровня термостат открывает большой контур охлаждения и ОЖ циркулирует дополнительно через радиатор (сверху вниз) и охлаждается проходящим через него воздухом. При достижении температуры ОЖ ещё более высокого значения включается электрический вентилятор системы охлаждения, который создаёт дополнительный воздушный поток через рёбра радиатора для более интенсивного отвода тепла от него. По мере открывания термостата объём жидкости, подаваемый от него к теплообменнику отопителя, уменьшается. На моделях с бензиновыми двигателями V6 расширительный бачок соединён с корпусом дросселя для обеспечения его подогрева.

Водяной насос приводится от коленчатого вала: на бензиновых моделях ремнём, а на дизельных – напрямую через шестерню. Термостат 4-цилиндровых двигателей находится в корпусе, расположенном на левой стороне двигателя. Термостат бензиновых двигателей V6 расположен на правой стороне двигателя. На дизельных моделях термостат помещён в корпус, закреплённых на маслоохладителе (спереди двигателя), и оснащён дополнительным клапаном для прокачки системы охлаждения. На 4-цилиндровые модели без кондиционера воздуха (К/В) устанавливается один вентилятор радиатора, управляемый сигналами от датчика температуры ОЖ (ECT). На прочие модели устанавливается два вентилятора радиатора. Вентиляторы моделей с К/В включаются в следующих случаях:

  • При достижении температурой ОЖ определённого значения (см. Спецификации);
  • При включении компрессора К/В (на низкой скорости), если температура окружающей среды выше 22 град., либо при движении автомобиля со скоростью ниже 38 км/ч и давлении в линиях К/В между 9 и 18 атм.;
  • При включении компрессора К/В (на высокой скорости), если давление в линиях К/В выше 18 атм.

Перед работой в двигательном отсеке, особенно в области вентилятора радиатора, обязательно отсоединяйте отрицательный провод от аккумуляторной батареи и разъём электропроводки вентилятора. Вентилятор радиатора может включиться из-за эффекта теплопроводности даже при выключенном зажигании.

Не открывайте крышку расширительного бачка ОЖ до полного остывания двигателя во избежание ожога горячей жидкостью или её паром.

При необходимости открыть крышку расширительного бачка при горячем двигателе обмотайте её толстым слоем ветоши. Снимайте крышку медленно, постепенно снижая давление пара.


« предыдущая страница
5. Системы охлаждения двигателя, отопления, вентиляции и кондиционирования воздуха
^
к оглавлению
следующая страница »
5.1.1. Общая информация и меры предосторожности

Copyright © 2026 Все права защищены. Все торговые марки являются собственностью их владельцев.