| 
		
 | 
  | 
	
13.1.2. Снятие, установка и регулировка дверейСнятие и установка
 
 
 | 
 Передние и задние двери снимаются одинаково.
  | 
 
 
 
Регулировка
  
 
 
 | 
 Перед регулировкой передних дверей следует отрегулировать задние двери, т.е. задние двери подгоняются к приваренным задним крыльям. В этом случае передние крылья, которые крепятся болтами, при необходимости можно подогнать к передним дверям. При регулировке дверь должна быть укомплектована стеклом и механизмом стеклоподъемника.
  | 
 
 
 
 | 
 Величины зазоров указаны в 
Спецификациях Главы Кузов. 
  | 
 
 
 
| 
 | 
 
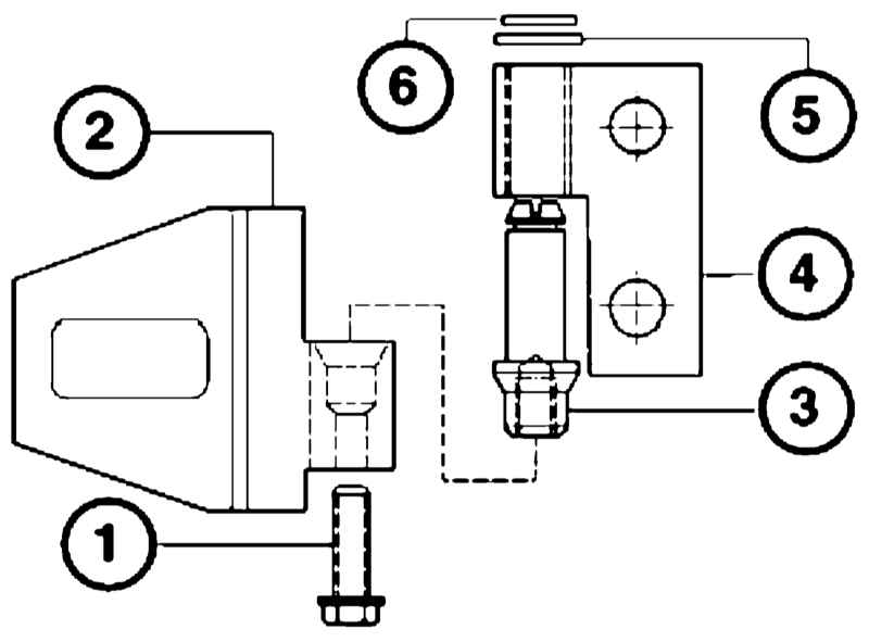
- Ослабьте крепление ударника замка. 
 
-  Полностью снимите трубчатое уплотнение передней двери. 
 
-  При установке 
новых дверей установите распорные шайбы между дверью и петлями. Для предварительной регулировки установите по две шайбы, каждая толщиной 1 мм. Отрегулируйте зазор с помощью соответствующего количества шайб необходимой толщины. 
 
-  Опустите стекла. При установке 
новых дверей проведите предварительную регулировку их положения по высоте: без нижней пылезащитной накладки двери величина нижнего зазора по всей длине должна составлять около 20 мм. Регулировка осуществляется посредством перемещения петель. 
 
-  Проверьте и при необходимости отрегулируйте передний и задний зазоры (на задней двери – только задний) – они должны быть равномерные и составлять 5 мм. Регулировка осуществляется посредством перемещения петель. 
 
-  При регулировке задней двери проверьте ее положение по высоте относительно кузова. При регулировке передней двери проверьте взаимоположение передней и задней дверей по высоте. При необходимости отрегулируйте соответствующую дверь по высоте, как описано ниже. 
 
 
 
 | 
- Вставьте в замок двери шаблон № 51 2 090.
 
 
 | 
 
 
 
 | 
- Ослабьте винт (1). Ослабить винт (2) настолько, чтобы ударник замка едва можно было сдвинуть незначительным усилием руки. 
 
 
 | 
 
 
 
 
 | 
 Не изменяйте регулировку фиксатора по глубине (3). 
  | 
 
 
-  Приподнимите ручку двери и, удерживая ее в этом положении, закройте дверь. Высота и наклон ударника замка регулируется по шаблону. Откройте дверь и затяните винты (1 и 2 на 
иллюстрации). 
 
-  Проверьте трубчатое уплотнение двери на отсутствие повреждений и при необходимости замените его. Установить трубчатое уплотнение двери. 
 
-  Установите на дверь нижнюю пылезащитную накладку. 
 
-  При установке передней двери проверьте отпечаток трубчатого уплотнения на сопрягаемой с ним поверхности двери. Для этого, находясь в автомобиле при закрытой двери, вставьте тонкий (не более 1 мм) прямоугольный пластиковый предмет (например, кредитную карту) между трубчатым уплотнением и рамой двери и проведите этот предмет вдоль сопрягаемой поверхности уплотнения и рамы, проверяя прилегание уплотнения. В зоне потолка между передней и центральной стойками кузова предмет, служащий для проверки, не должен легко вытягиваться. При необходимости замените уплотнение или отрихтуйте дверной фальц, на который надето уплотнение. 
 
 
 
 | 
 Чрезмерная рихтовка фальца приведет к увеличению усилия, необходимого для закрывания двери.
  | 
 
 
 | 
 
 
 | 
 
 
 
 |  
  |